Raumkonzepte JuveCampus 2026+
- angelalindner4
- 15. Mai 2025
- 4 Min. Lesezeit
Aktualisiert: 20. Mai 2025
Wir freuen uns, Euch die Raumkonzepte für unsere zukünftigen Standorte vorzustellen. Der Umbau am JuveCampus HB startet später, wie Ihr im Zeitplan gesehen habt. Deshalb stellen wir Euch hier zunächst das Konzept für die Räume im JuveCampus City und für das 1. OG am JuveCampus HB vor:
Innenarchitektin Bea Knöpfel, Architekt Thomas Bucher und die Infrastruktur-Teams haben in den letzten Wochen gemeinsam die Konzepte definiert und der Geschäftsleitung und unserem Stiftungsratspräsidenten zur Absegnung vorgestellt.
Gestaltungsprinzipien
An beiden Standorten investieren wir vergleichbare finanzielle Ressourcen. Die Raumkonzepte folgen dabei Gestaltungsprinzipien, die im Einklang mit der strategischen Ausrichtung und den Werten der Stiftung Juventus Schulen definiert wurden:
#1 Reuse und Design
> Wir verwenden bestehende Elemente wo immer möglich weiter, machen aus dem, was wir haben, Neues mit Designanspruch.
#2 nachhaltige und gesunde Lernumgebung
> Wir verwenden im Rahmen des Budgets nachhaltige Materialien und achten auf gesundheitsrelevante Aspekte in allen Bereiche
#3 Freiheit durch Struktur
> Wir ermöglichen flexibles Lernen und geben gleichzeitig Strukturen vor, die einen reibungslosen Ablauf der Raumnutzung begünstigen
#4 constant beta
> Wir sind uns bewusst, dass sich Lerntrends stets weiterentwickeln. Deshalb legen wir flexible Bau- und Materialkonzepte zugrunde.
#5 Begegnungsorte
> Wir sorgen für Begegnungszonen, um den regelmässigen, unkomplizierten Austausch und das Miteinander zur Regel zu machen. Denn aus Begegnungen wachsen Ideen und Verständnis füreinander.
#6 Rückzugsmöglichkeiten > Wir geben Lernenden/Studierenden und Mitarbeitenden Möglichkeiten für ungestörtes Lernen bzw. Arbeiten.
So erreichen wir unser übergeordnetes Ziel für beide Standorte:
«Der Juventus Campus wird ein zukunftsoptimistischer Begegnungsort an dem jede/r sowohl individuell als auch gemeinsam mit Freude lernen kann.»

Wichtig zu wissen: die in den Skizzen gezeigte Möblierung kann sich bis zum Einzug im Detail noch ändern.
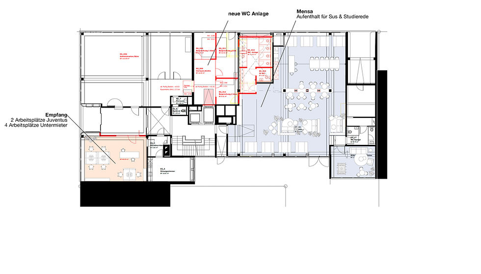
Räume JuveCampus City
EG - Empfang & Aufenthalt für Lernende/Studierende
Im Empfangsbereich stehen 6 Arbeitsplätze zur Verfügung:
4 für unseren Untermieter (Informationen folgen in Kürze) und 2 für Juventus.
Der Empfangsbereich ist bisher offen. Er wird in Zukunft abgetrennt und durch eine Tür erreichbar sein.
Ein paar Informationen bzgl. des Untermieters sind noch nicht finalisiert. Diese Informationen werden demnächst nachgereicht.
Die Mensa mit Aufenthalt wird zeitgemäss und robust eingerichtet. Den Lernenden und Studierenden stehen verschieden möblierte Bereiche für ihre Mahlzeiten und den Aufenthalt zur Verfügung. Ausserdem finden sich hier Mikrowellen und Food-/Snack- und Getränkeautomaten.

1. OG
Im 1. Stock stehen zwei klassische Schulräume für bis zu 24 Personen zur Verfügung. Die Möblierung kann auch für Gruppenarbeiten umgestellt werden.
Ausserdem befinden sich hier zwei Kombi-Schulräume mit integriertem Workshop-/Gruppenarbeitsbereich für ebensoviele Personen und eine grosse Lernlandschaft, die auch vermietet werden kann.
Die Lernlandschaft bietet Platz für bis zu 99 Personen bei Konzertbestuhlung (z.B. für grosse Prüfungen) und das für Events nötige technische Equipment. Die Möblierung kann flexibel eingesetzt und Bereiche abgetrennt werden.

2.OG
Im 2. Stock stehen ebenfalls zwei klassische Schulräume (24 und 32 Personen) zur Verfügung. In zwei weiteren Kombi-Schulzimmern für 24 bzw. 32 Personen kann auch hier flexibel gelernt und in Gruppen gearbeitet werden.
Zwei kleinere Lernlandschaften ergänzen die Räume im zweiten Stock. Sie können über eine Schiebetür miteinander verbunden werden und sind sehr variantenreich für handlungskompetenzorientierten Unterricht verschiedener Anspruchsgruppen möbliert.

3. OG
Im dritten Stock verfügen wir über zwei weitere klassische Schulräume für 24 und 14 und zwei Kombi-Schulzimmer für 32 und 24 Personen. Ausserdem befinden sich hier die Räume unseres Untermieters.

4. OG – Administration & Aufenthalt AMA, PMA
Im vierten Stock befinden sich die Büros für unsere Administration kombiniert mit dem Aufenthaltsbereich für AMA und PMA.
Unsere Arbeitsplätze – clean desk
Es stehen über 35 Arbeitsplätze zur Verfügung. Die Innenarchitekt/innen haben auf Basis ihrer Erhebung «fixe» und «shared» Arbeitsplätze eingeplant. Shared Arbeitsplätze sind vor allem für die Teammitglieder gedacht, die weniger als 50 % ihrer Arbeitszeit am Platz verbringen.
Zusätzlich können wir in Fokus-Arbeitsräumen und Talkies (Room in Room) ungestört arbeiten oder auch telefonieren.

Fokus Arbeitsräume
In den Fokus Arbeitsräumen stehen voll ausgestattete Arbeitsplätze zur Verfügung. Sie sind für Aufgaben gedacht, für deren Erledigung es für eine gewisse Zeit eine gesteigerte Konzentration und Ruhe braucht.
Die Fokus Arbeitsräume können spontan genutzt und müssen nicht vorab gebucht werden. Natürlich ist es dabei wichtig, dass sie von allen Teammitglieder gleichermassen genutzt werden können und niemand dauerhaft hier arbeitet.
Meetingräume
Mit vier Meetingräumen haben wir ausreichend Platz für verschiedenste Besprechungen. Die Räume werden schallisoliert und technisch für «vor Ort»- und Onlinemeetings ausgestattet sein.
Begegnungszone
Der Küchenbereich wird während des Umbaus geöffnet und zu einer zeitgemässen Begegnungszone für AMA & PMA umgestaltet. Wir können hier gemeinsam Mahlzeiten einnehmen, einen Kaffee trinken oder auch an Hochtischen am Laptop arbeiten.
Der Küchenbereich wird mit Kühlschrank, Kaffeemaschine und Stauraum ausgestattet sein. Neu ist, dass wir mitgebrachtes Essen in der Cafeteria im EG wärmen, um Geruchsemissionen so weit wie möglich zu reduzieren.
Im Sommer und bei schönem Wetter haben wir die Möglichkeit, auf dem Balkon zu essen und durchzuatmen.

Räume JuveCampus HB
Am JuveCampus HB entstehen verschiedene neue Spezialzimmer für den medizinischen Unterricht. Hier ist der Zeitplan nicht so eng, wie für die Unterrichtsräume des JuveCampus City. Deshalb sind die Konzepte für diese Unterrichtsräume noch in der finalen Ausarbeitung und werden zu einem späteren Zeitpunkt kommuniziert.
1.OG - Administration, Empfang, Aufenthalt AMA & PMA
Im bisherigen Bereich der Administration bleiben die Meeting-Räume erhalten. Das aktuelle GL-Büro wird zum Empfangsbereich.

Der Küchenbereich wird geöffnet und nach demselben Konzept, wie am JuveCampus City in eine Begegnungszone verwandelt. Man kann hier sowohl arbeiten als auch die Mahlzeiten einnehmen.

Neu: Clean Desk Policy
Gemäss einer Clean-Desk-Policy halten wir unsere Arbeitsplätze aufgeräumt, indem keine persönlichen oder vertraulichen Unterlagen nach Arbeitsschluss offen liegen bleiben. So gewährleisten wir vertrauliche Informationen schützen und eine professionelle Arbeitsumgebung.
FYI: Informationsklassifizierungen
Vertraulich | Informationen, deren unbefugte Offenlegung der Organisation Schaden zufügen könnte. | z.B.: Interne Richtlinien, finanzielle Berichte, Kundenlisten |
Streng vertraulich | Informationen, deren Offenlegung ernsthafte Schäden verursachen könnte, einschliesslich rechtlicher Konsequenzen. | z.B.: Personenbezogene Daten |
